一、简介
PHC预应力混凝土管桩具有强度高、施工方便快捷、单桩承载力高等特点。 它们是高层建筑中常见的桩基础。 桩基长度范围内场地土层为黄土粉土、粉土等,砾石粉土、粉土及粉质粘土地基承载力得到显着提高。 在人口密集地区,采用静压法降噪,减少噪声污染。 但对于承载层位于卵石层的地区预应力钢结构技术规程,管桩的有效长度较深或地下有巨石。 过大的压力(支撑力)很容易造成管桩倾斜甚至断裂。 沉桩挤压土体,引起水平位移和断裂。 这些因素都限制了管桩的使用。 性别。 受灌注桩后注浆施工技术的启发,通过对地基承载力和地质调查报告数据的研究、计算、分析,以提高PHC管桩的承载力,减少有效桩长度,满足地基承载力要求,采用PHC管桩注浆施工工艺。 专家论证了其可行性。 采用注浆技术的PHC管桩有效解决了有效桩长度过大的问题,避免了有效桩处于硬砾石持力层中。 同时,环保、节材、降噪、加快工期等显着提高。
2、施工方法特点
1、采用后注浆技术,在满足地基承载力的同时,可大大减少压桩深度。 克服了软土层与管桩本体亲和力差的问题。 通过桩侧注浆,端承桩的桩侧摩擦力增加了地基。 承载能力。
2、可大幅度提高单桩承载力,便于灵活选择承载层,缩短有效桩长,加快施工进度。
3、注浆装置安装方便,可有效降低成本。
三、适用范围
该施工方法适用于素填土、混合填土、粉土、粉质土、粉土、粘土、砾石土等地基,不适用于致密厚的砂土层和风化岩层。
四、工艺原理
4.1 PHC灌浆管桩后注浆工艺是在桩端加装灌浆机,采用静力压桩法,用打桩机承受焊接牢固的灌浆管桩的压力,达到设计要求。海拔。 ,通过施工标高和有效桩长确定最终压力值,并以最终桩压压力为参考。 沉桩结束48小时后,使用高压注浆泵通过导管对PHC管桩进行注浆。 单桩的承载力将大大提高。 提升。
4.2 桩底注浆时,浆液与桩底土层发生置换、压实、固结或化学反应,形成石块。 压力灌浆通过渗透、压实、填充和固定,提高承载层的强度和变形能力。 并形成加大头部,增大桩端承压面积。
4.3 桩侧后注浆时,浆液首先渗透并置换与管桩接触的土层,劈裂桩周土,混合、压实、填充桩侧与桩周土之间的间隙,并改善了桩侧。 与桩周土体的粘结力增大了桩侧摩阻力,减小了灌注桩的有效桩长。
5、施工技术
5.1 工艺流程
专家论证→试桩→静载检测→注浆装置加工→注浆装置安装→注浆管设置→桩孔定位→沉桩→注浆→维护→检测验收
5.2 施工方法
5.2.1专家论证:
由于目前尚无预应力管桩的实际应用实例,施工前组织专家进行了专家论证:

5.2.2 试验桩:
试验桩的指导思想是充分发挥管桩的强度,采用适当的有效桩长,使地基土的强度达到桩体的强度,即桩的承载力,最终达到经济合理的效果。
根据图集数据和强度计算,PHC500-125AB桩的桩体强度设计值为2700KN。 考虑最大地震荷载组合时,桩体轴力设计值为4626KN,是较为经济的结果,故取单桩承载力极限值。 4626KN是设计要求。 根据图集数据,桩体强度特征值为2700KN,即极限承载力为5400KN。 桩基试验过程中,采用5400KN作为承载力试验破坏的目标值。 实际检测过程中,所有值均处于目标值或前一个值。 若在某一等级荷载下发生破坏,则应取该破坏荷载以上等级的荷载作为单桩试验极限承载力的标准值。

表1:试验桩详情如图(均为PHC500-125AB桩)
从以上结果来看,不注浆的有效桩长约为45米,注浆后承载力显着提高。
根据地质调查报告提供的参数,理论计算需要47米左右,单桩承载力极限值可满足4626kn:
Quk=uΣqsikli+qpkAp=(32*4.6+45*10.3+45*9.2+65*5.8+72*18)*0.5*3.14+0.5²*3.14*0.25*2000=4626kn
Σli=4.6+10.3+9.2+5.8+18=47m
因此,静载试验结果与理论计算结果比较接近。
由于静载试验在灌浆后15天开始,龄期小于28天,可能会影响承载力结果。 纯水泥用量增加至2.0t。 在保证龄期的情况下,26米的有效桩长可以满足设计要求。
5.2.3桩静载检测:
由于后注浆工艺是一种新的施工工艺,积累的经验不多,也没有可采用的标准。 出于安全保险考虑,有效桩长暂定为35米,采用后钻沉管注浆。 泥浆量为纯水泥(P.O52.5R)2t,单桩承载力极限Quk=4626kn,在实际工程中实施。
C区二期7号楼、8号楼均为地下两层,地上32层,离地高度100米。 它们是剪力墙结构。 采用上述基础方案的静载试验结果如下:

表2:7#楼静载测试结果汇总

表3:7#楼静载试验结果汇总
5.2.4注浆机处理:
1、灌浆机采用12mm钢板焊接而成,焊缝两侧满焊。 焊接灌浆机周围设置12mm*40mm*500mm的竖向加强筋,横向加强筋采用50mm*50mm*12mm钢板焊接而成。 ,保证灌浆机的强度和刚度,保证其能承受压桩时的荷载,不变形、不损坏。
2、将注浆装置顶板上的开口与注浆管焊接。 注浆管与注浆管之间的连接采用螺纹连接。 注浆装置周围均匀设置注浆孔,不少于42个。注浆时孔下部焊有孔保护耳板,防止打桩过程中侧壁土体被压实、压实,从而影响注浆压力。 注浆装置内填充石块,保证注浆装置的抗压强度。

图1:注浆装置结构示意图


图 2:焊接灌浆机
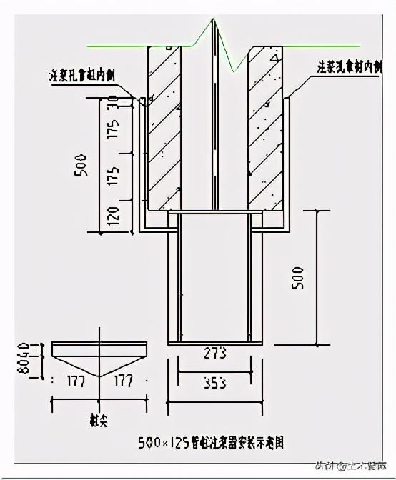
5.2.5 注浆装置安装:
注浆装置的安装采用焊接技术将注浆装置与预应力混凝土管桩顶端板焊接在一起。 焊缝饱满,焊脚尺寸不小于5mm。 焊接前,将注浆管穿过管桩,将注浆装置端部的板与桩端法兰焊接成型,如图:



图4:注浆管贯穿及注浆装置焊接
5.2.6 注浆管的设置:
注浆管采用直径25mm钢管,与注浆装置连接采用焊接。 注浆管之间的连接采用螺纹连接。 管子长度为注浆装置顶板至桩顶距离负50mm。 注浆喷嘴具有止回功能。 功能上,导管上部应采用麻丝密封,桩侧注浆管应采用低强度材料,如用塑料带包裹。 确保在灌浆压力下顺利打开。
5.2.7 桩孔定位:
根据施工单位提供的现场3个以上坐标点,结合场地实际布局,布置每栋建筑的控制点,每栋建筑控制点不少于2个。 控制点采用混凝土保护,以后使用时必须妥善保护。 根据各建筑物的控制坐标点,用全站仪或GPS放样建筑物内的桩号,发布具体位置,并用钢钉扎红布条打入画面150mm,确保桩点是经过机械碾压后的。 位置很好,很容易找到桩点。


5.2.8 沉桩:
压桩前,需确认打桩机吊钩已与起桩工具分离,桩头已准确居中于桩位。 使用经纬仪在两个方向上校准测量:桩身正前方和90度角。 确保桩体垂直偏差控制在0.15%以内。 桩帽、桩身、喂入桩的中心线应重合。
管桩采用法兰焊接连接。 延长长度时,用钢丝刷清理桩端板处的杂物。 斜面应用刷子刷至露出金属光泽。 为了便于桩的焊接,土中桩段的顶部距地面0.5-0.5-。 1.0米。 焊接时,建议在坡口周围对称点焊4至6个点。 上下桩段固定后,拆除导箍,然后对称分层焊接。 焊接层数为3层,焊接外层前必须清除内层焊渣。 一层,焊缝应饱满连续,根部必须焊透。 待焊桩自然冷却后才能继续沉桩。 焊接后严格使用冷水或立即沉桩。

桩

连接桩
5.2.9灌浆:
注浆环节是预应力混凝土管桩后注浆技术的关键环节,包括注浆时间、注浆量、注浆压力的控制。 这些环节的控制是后灌浆过程质量控制的核心控制点。 ,有可能如果不满足一项要求,桩端承载力就达不到要求,所以非常关键。
1、浆料配比:
灌浆材料采用普通硅酸盐水泥。 强度等级为PO42.5。 严禁使用因受潮而堵塞的水泥。 浆液的水灰比应根据土体的饱和度和渗透性确定。 对于饱和土,水灰比宜为1045。-0.65,非饱和土宜为0.7-0.9,松散砾石宜为0.5-0.6。
2、浆料设备:
水泥浆的搅拌采用机械搅拌。 浆料应搅拌均匀,无明显结块或水泥结块。 应先薄后厚。 第一罐浆液水灰比宜为0.8,后罐水灰比宜为0.5~0.6。 浆料必须经过两级搅拌和两级过滤后,第一级搅拌10分钟以上。 混合后的浆液经过滤器到达水泥池,再经二次过滤到达浆液二次搅拌罐。 过滤网目不大于3mm。 小搅拌罐内应处于不间断搅拌状态。 搅拌过程泌水率不应超过3%,浆体有足够的流动性,可适当添加缓凝剂,控制水泥浆的初凝时间。 浆料配置图如下:

3、注浆管安装:
灌浆安装采用螺纹连接。 注浆装置与注浆管采用螺纹连接。 将注浆管插入管桩中。 注浆装置与管桩端部采用法兰焊接。 将桩芯穿过注浆管。 第一段桩顶标高为10cm。 第二段注浆管也提前拉好。 吊装后,用三脚架连接桩口处的注浆管。 然后手动将注浆管连接至桩口。 注浆管连接后进行打桩


注浆罐与注浆管的连接
4、灌浆:
注浆前需确认搅拌机、高压注浆泵、压力表等设备的工作状态,检查注浆机及注浆管道的状况,设置注浆配置罐,并与注浆机可靠连接。高压注浆泵,然后用石子(粒度40mm)填充到管底以上500mm,然后用石粉填充到水位以上(大于500mm),然后微喷采用膨胀细石混凝土填充2000mm。 24小时后即可进行灌浆。
开始注浆时,启动高压注浆泵,先低位加压,待正常后再转加压。 一般情况下,正常压力维持在1.5~2.5mpa,瞬间可达3mpa。 当注浆太稠时,注浆泵会被堵塞。 不要轻易打开注浆泵活塞,并采取严格的安全措施。
部分桩存在向上灌浆现象。 发生灌浆时,应立即停止灌浆,采用间歇灌浆,即每隔15分钟施加瞬时压力,1小时后继续灌浆,直至达到终止灌浆的条件。
终止灌浆条件为一般情况下以2t纯水泥用量作为控制终止灌浆标准。 计划当纯水泥用量达到1.2t以上、压力达到3MPa并持续5分钟以上时,即可终止注浆。

注浆效果
5.2.10 维护:
养护时间不能少于15天,灌浆完毕15天后进行静载试验。
5.2.11 桩基检查:
预应力混凝土管桩的检验主要包括三个方面:管桩拼接时焊缝探伤、同一工程不少于3个接头的探伤抽样检验。 进行低应变法试验,检测桩体的完整性。 一般情况下,桩基工程抽查数量不应少于桩总数的20%,且不应少于10根; 设计等级为A级,抽查数量不应少于桩总数。 30%,多桩承台每列下随机抽检不少于20根,且不少于1根; 混凝土条件下现场静载试验和单桩静载试验中的试验桩数量不应少于本项桩总数的1%,且不少于3根。


6. 质量控制
6.1控制标准:
《建筑基础工程施工质量验收规范》GB50202-2002
《建筑桩基础技术规范》JGJ94-2008
《预应力混凝土管桩基础技术规程》DGJ32TJ190-2010
1、注浆机加工质量要求:
加工灌浆装置时,灌浆孔数必须满足42孔。
灌浆机的承压性能必须达到6MPa以上。
2、打入桩位置允许偏差:

注:H为施工场地地面标高与桩顶设计标高之间的距离。
3、灌浆施工注意事项:
1、正常情况下,正常压力维持在1.5~2.5mpa,瞬间可达3mpa。
2、部分桩存在向上注浆现象。 发生灌浆时,应立即停止灌浆,采用间歇灌浆,即每隔15分钟施加瞬时压力,1小时后继续灌浆,直至达到终止灌浆的条件。
3、终止灌浆条件为一般情况下以2t纯水泥用量作为控制终止灌浆标准。 计划当纯水泥用量达到1.2t以上、压力达到3MPa并持续5分钟以上时,即可终止注浆。
6.2 管理措施:
1、建立健全质量管理体系,落实责任制度:
为确保质量符合标准,成立质量管理小组,成立以质量责任工程师为核心的领导小组,落实质量责任制,树立人人有责、要提高质量的理念。
2、联合验收制度:
加强过程检查。 各工序作业前必须进行有针对性的技术交底,向操作人员灌输质量目标标准。 在每道工序自检合格的基础上,由工长会同质检员、监理工程师等进行检查,确保检查不到位。
3、奖惩制度:
制定细化、切实可行的奖惩制度和细则,贯穿项目建设全过程。 通过奖好罚坏,鼓励施工人员在施工过程中进一步强化责任意识,把工作做得更加细致、精准、认真,避免避免不必要的错误以及今后出现类似的错误。
4、质量咨询体系:
每周组织项目部各管理人员定期进行现场检查,进行质量咨询及现场施工总结,填写质量咨询表,包括原因,分析原因,确认原因的解决方案,下周不再进行预控 当出现相同问题时,同时项目管理人员会统计同一过程中施工质量问题出现的频率,进行统计分析,进一步发现问题变化趋势,从而更好地克服质量通病。
5、落实集团公司管理“50效”管理细则。
6.3 施工过程质量控制:
1、参赛材料:
所有来料管桩均进行规格、型号、壁厚、类型、生产厂家、生产日期、外观质量检验、质量证明文件等检验。
2、技术简介:
对于技术难度大或复杂的关键部位或施工工艺,在施工前,项目技术人员准备详细、有针对性的技术说明,并提交监理工程师审核。 审核通过后预应力钢结构技术规程,采用PPT演示对每一个步骤进行讲解,系统为每个操作人员提供客观、清晰的解释。 对于未公开的部分,不得进行正式施工。
七、安全控制措施
7.1管理措施:
1、落实安全责任制:
建立健全安全生产责任制度,改善安全生产条件,确保安全生产。 搞好安全生产,防止人员伤亡和职业病的发生,关系到公司每一位员工的切身利益,关系到千家万户的幸福安康。 关系到公司生产的顺利进行和经济效益的稳定增长。 社会稳定,人民安居乐业,项目部必须认真落实安全生产责任制。 只有这样,才能达到安全生产、提高效益的最终目的。
2、专职安全员日常安全检查:
项目部专职安全员每天进行现场检查,及时纠正现场工人的不当操作行为。 对施工现场出现桩孔外露等不安全情况的,及时落实要求并整改到位,及时纠正现场材料堆放情况。 如有安全隐患,应及时整改。 专职安全员必须每天做好现场安全检查,定期对工人进行安全简报,让每一个工人都能安全作业,确保人人注重安全、心中有安全。
3、专业领班实行每日竣工检查记录:
专业领班每天实行日常竣工检查记录,检查现场工作是否完成,并及时向项目部反馈真实的现场信息。
4、安全经理组织班前安全动员:
安全经理对进入现场的工人组织教育和澄清,每班前组织安全动员会并记录班前讲话,不断提醒工人注意安全,提高工人的安全意识。
5、项目部经理积极响应,生产必须安全管理
施工现场管理人员必须做好生产和安全管理,对不规范作业的工人及时纠正。
7.2 现场施工安全注意事项:
1、静压打桩机在起桩过程中,操作人员必须远离起桩作业的有效选择半径。
2、起重作业范围内,应划定危险区域,设置警戒线。
3、焊接时应制作专用挡风罩,并采取严格的火花处理措施,防止火灾、烧伤等不安全因素。 雨天禁止露天焊接作业,防止触电事故。
4、连接桩时用于焊接的各种气瓶应
八、经济效益分析
本工程前期设计采用管桩承载力特征值为4513KN,最小有效桩长为45米。 有效桩长范围包括黄土粉土、粉土、碎石粉土、粉土和粉质粘土。 桩端持力层为粉土或粉质粘土。
针对现场土质情况,项目部通过探索和创新科研,对不注浆预应力桩、开挖注浆预应力桩、注浆预应力桩进行静载试验。 试验桩总数达到20根。 试验结果表明,26米长PHC-500-125注浆管桩承载力极限为5155~5415KN,45米长PHC-500-125管桩注浆承载力极限为5155~5415KN。桩(无灌浆)为4833KN。 说明注浆对于提高单桩承载力有非常显着的效果。
采用注浆装置的注浆管桩工艺,单桩注浆装置、水泥、人工费用为1760元。
26米长单桩灌浆造价为:
1760元+26*180元=6440元
45米长管桩无注浆装置
45*180元=8100元。
工程共2235根桩
采用灌浆装置的灌浆施工工艺预计节省成本为:(8100-6440)*2235=3710100元。
9. 应用实例
该工程用于首都国际学院二期二标段桩基工程。 由晋中科技创新城置业有限公司开发,四川宏基原创设计有限公司设计,山西省建设监理有限公司监理,江苏南通第二建设集团总承包有限公司,由国际建设集团有限公司专业分包。
注:欢迎大家关注小编的微信公众号“土木工程智库”,里面有小编整理的很多建筑行业的资料,包括一次施工、二次施工、造价、消防视频和课件等。 欢迎大家加入