四面邻居采光依然极佳,70万450平乡村别墅10个功能+loft

四面邻居采光依然极佳,70万450平乡村别墅10个功能+loft
项目名称:河北廊坊格家现代别墅
项目经理:邓强
图号:1043
建筑面积:448.4㎡
面积:193.9㎡
建筑尺寸:18.5m×15.6m
建筑结构:砖混结构
参考费用:70万元(不含室内装修费用)

四面邻居采光依然极佳,70万450平乡村别墅10个功能+loft
△总平面图
基地情况:
东:邻居家
西:邻居家
南边:邻居家
北:村里的窄巷
项目介绍:
业主在项目前期提出了对平面图的总体要求,并明确希望增加尽可能多的凸窗设计; 在立面方面,业主喜欢多元化的风格。
由于项目场地周边住宅较多,建筑总高度必须考虑邻近采光。 根据项目场地条件以及业主的需求和喜好,设计师将项目形态确定为坐北朝南的新中式三层别墅。
户型概述:
2层+阁楼/5间卧室、2间客厅、5间浴室、1间厨房、2间储藏室、2个衣柜、1间书房、1间茶室、1张榻榻米、1个露台

四面邻居采光依然极佳,70万450平乡村别墅10个功能+loft
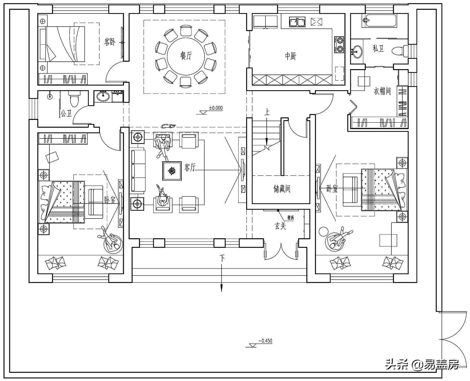
△一层平面图
一层的东西两侧布置了卧室,中间大片区域作为公共空间。 南北通透的布局,有效解决了东西邻里距离太近带来的采光问题。 楼梯间布置在客厅的西侧,使一二层的转角空间得到更有效的利用。

四面邻居采光依然极佳,70万450平乡村别墅10个功能+loft
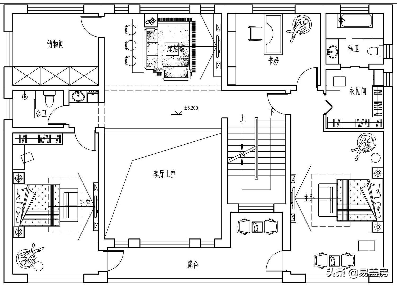
△二层平面图
由于客厅采用中空的形式,二层中间区域大部分作为中空空间,北侧的客厅作为休闲空间。 二层东西两侧的布局与一层相同。 西北角增设储藏室,增强室内储藏功能。 西侧的主卧套房除了更衣室和独立卫生间外,还设有书房,丰富了功能,大大提高了使用的便利性。 。

四面邻居采光依然极佳,70万450平乡村别墅10个功能+loft
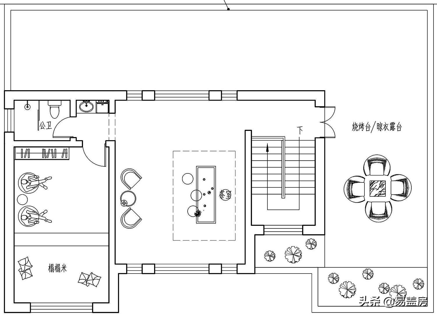
△三层平面图
三层为阁楼,主要用于日常休息、品茗、交流等。西、北两侧的“L”形露台增加了户外活动空间北京钢结构阁楼,兼具观景、聚会、交流等功能。和烘干都满意。

四面邻居采光依然极佳,70万450平乡村别墅10个功能+loft
△南侧效果图
整体建筑以现代风格为主,同时融入新中式、欧式细节,增强视觉体验的多样性。 建筑的四开间形式,结合立面的起伏和体量的划分,在装饰效果上形成了鲜明的对比。

四面邻居采光依然极佳,70万450平乡村别墅10个功能+loft
△鸟瞰图
西湾采用简约欧式装修手法,营造温馨浪漫的氛围; 中间两个开间利用开放式阳台划分一、二层立面区域,同时也起到为一层门厅遮挡风雨的作用; 东湾采用简约简约的设计手法,无论是露台上现代风格的栏杆,还是凸窗的凹凸变化,营造出线条强烈的几何美感。

四面邻居采光依然极佳,70万450平乡村别墅10个功能+loft
△鸟瞰图

四面邻居采光依然极佳,70万450平乡村别墅10个功能+loft
△鸟瞰图
在材料方面,设计师采用了多种建筑材料。 文化石、角柱GRC构件、塑料板和金属玻璃栏杆的组合,大大增强了立面造型的视觉冲击力。

四面邻居采光依然极佳,70万450平乡村别墅10个功能+loft
△鸟瞰图

四面邻居采光依然极佳,70万450平乡村别墅10个功能+loft
△鸟瞰图
屋顶阁楼增加了南立面的视觉延伸感,而它在北立面的存在则显得“低调”很多。 考虑到坡屋顶对层高的限制和影响北京钢结构阁楼,设计师在东北侧设置了大面积的露台,以实现功能与造型的完美平衡。

四面邻居采光依然极佳,70万450平乡村别墅10个功能+loft
△东立面图

四面邻居采光依然极佳,70万450平乡村别墅10个功能+loft
△西立面图

四面邻居采光依然极佳,70万450平乡村别墅10个功能+loft
△南立面图

四面邻居采光依然极佳,70万450平乡村别墅10个功能+loft
△北立面图
1. 作为一名设计师,您在这个项目中遇到了哪些困难?
答:与业主的沟通非常顺利,方案反馈清晰及时,所以整个项目过程比较顺利。
2、该项目的设计周期是多长?
答:30天左右。
3、有没有哪些您非常满意但没有被业主采纳的设计建议?
答:与业主的沟通障碍很少。 很多设计建议经过我们的解释后都得到了业主的认可。