四栋80平米至160平米简易二层轻钢别墅设计图

发布日期:2023-10-29    浏览次数:319

很少能找到几套适合轻钢施工的简单设计图纸。 建筑面积80平方米至160平方米不等。 这种户型适合那些在城市工作,然后在农村养老,偶尔回家的人。 我们,建设价格不会太高,不会给自己带来太大的压力,同时又能体验到轻钢的舒适感。 只要成本控制得当,使用轻钢包括简单装修,成本控制在1500-1800每平方米是没有问题的。

其实我觉得如果很多轻钢企业或者个人团队能够有这样基本的房型标准化操作,就可以在保证质量的同时很好的控制成本,让更多的用户享受到轻钢带来的好处。

下面我们就来一一看看这些户型吧。 第一个是80平方米的。

外观很简单,基本上油漆或者PVC挂板就够了。 在乡村,就是低调,只要住得舒服就行。

钢结构别墅图纸_钢结构别墅施工图纸_别墅钢结构

一楼平面图,客厅厨房卫生间——四栋简约二层轻钢别墅设计,面积从80平米到160平米不等

钢结构别墅图纸_钢结构别墅施工图纸_别墅钢结构

二楼两房——四栋简约二层轻钢别墅设计,面积从80平米到160平米不等

别墅钢结构_钢结构别墅施工图纸_钢结构别墅图纸

第二套建筑面积100平方米,外观与第一套类似,只是屋顶更尖一些。

别墅钢结构_钢结构别墅施工图纸_钢结构别墅图纸

一楼客厅和一间小房间——四栋简约二层轻钢别墅设计钢结构别墅图纸,面积从80平米到160平米不等

钢结构别墅图纸_钢结构别墅施工图纸_别墅钢结构

二楼两卧室带卫生间——四栋简约二层轻钢别墅设计,面积80平米到160平米不等

别墅钢结构_钢结构别墅图纸_钢结构别墅施工图纸

第三套建筑面积134平方米——四套简约二层轻钢别墅设计面积从80平方米到160平方米不等

钢结构别墅施工图纸_别墅钢结构_钢结构别墅图纸

一楼有客厅、餐厅、厨房和一间卧室

钢结构别墅施工图纸_别墅钢结构_钢结构别墅图纸

二楼两居室——四栋简约二层轻钢别墅设计,面积从80平米到160平米不等

钢结构别墅施工图纸_别墅钢结构_钢结构别墅图纸

第四套面积比较大钢结构别墅图纸,有158平方米。

钢结构别墅图纸_钢结构别墅施工图纸_别墅钢结构

一楼客厅、餐厅、厨房、卫生间

钢结构别墅施工图纸_钢结构别墅图纸_别墅钢结构

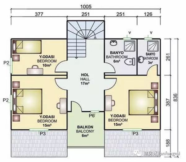
二楼三间卧室和两间浴室

钢结构别墅图纸_钢结构别墅施工图纸_别墅钢结构

这个怎么样? 涵盖了不同的领域,只需根据您的需求选择合适的即可。

由于结构比较简单,跨度也不大,也可以用EPS模块或砖混结构建造,看当地哪种比较方便。

当然,也可以采用轻钢。 成本比砖混略高,但造型和舒适度比砖混有很大提高。 如果你想了解更多关于自建轻钢结构的知识,可以加入建筑迷。 轻钢别墅QQ交流群263219593

同时,需要建造自己的轻钢别墅的建筑爱好者可以联系建筑爱好者管理员Wugui的微信simplewebs

别墅钢结构_钢结构别墅图纸_钢结构别墅施工图纸

查看更多 >>

推荐产品

在线咨询
微信咨询
联系电话
13587233356
返回顶部