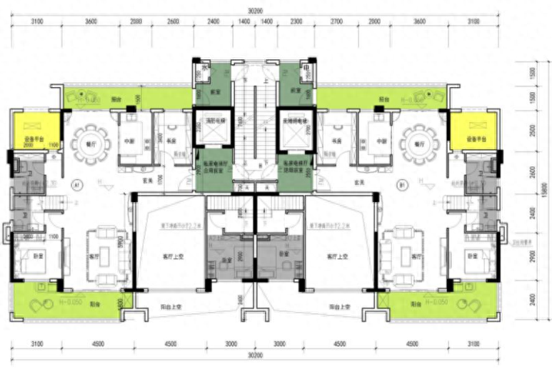
1.建筑结构的定义
建筑结构是建筑物内能承受作用(或荷载)的平面或空间系统,由若干构件,即梁、板、柱等结构单元连接在一起组成。 简单来说,就是房屋的承重框架。
2、建筑结构组成

3、建筑结构的分类
(1)根据所用材料不同分为:

1、混凝土结构(以混凝土为主要材料的结构)包括:
(1)钢筋混凝土结构
配置普通钢筋、钢网或钢骨架受力。


(2)预应力混凝土结构
预应力混凝土结构是指含有预应力混凝土梁、板的钢筋混凝土结构。

预应力混凝土板
(3)素混凝土结构
没有配置承受应力的钢筋混凝土结构。

2、钢结构
主要由钢材(钢板、型钢)制成的结构。

3、砌体结构
由砌块和砂浆砌成的结构。

4、木结构
完全或大部分由木头制成的结构。

5、混合结构
由两种或两种以上材料制成的作为主要承重结构的房屋。

此外,还有钢-混凝土结构、钢管混凝土结构等。



(2)按承重结构类型分为

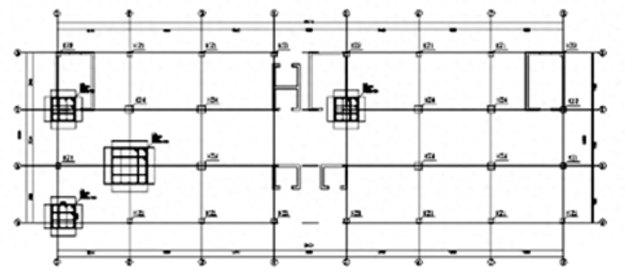
1、框架结构
(1)采用梁、柱组成的结构体系作为建筑的承重结构。
(2)框架结构的主要构件为梁、柱,墙仅作为围护构件。
(3)可制成预制或现浇框架,布局更加灵活,允许使用更大的空间。
(4)比混合结构具有更高的强度和更强的整体性,但随着层数的增加横向刚度不足。

2、剪力墙结构
(1)以建筑物纵、横向钢筋混凝土墙体为主要承重构件,配以梁、板组成的承重结构体系。
(2)它的墙壁还起到围合和分隔房间的作用。
(3)整体性好,刚度高,抗震性能好,适合高层建筑的建设(适用于10-50层范围)。
(4)但剪力墙间距太小,布置不灵活,结构笨重。 不适合公共建筑的建设,一般适合住宅建筑的建设。

3、框架-剪力墙结构
(1)在框架结构的基础上,沿框架纵向和横向的一定位置,在柱间设置若干钢筋混凝土墙作为剪力墙。
(2)因此,它是框架与剪力墙的有机结合,集两者的优点于一体:一是布局灵活,二是抗侧力高。

4、筒体结构
由密柱高梁的空间框架或空间剪力墙组成。 在水平荷载作用下起整体空间作用的抗侧力构件称为筒体(由密柱框架组成的筒体称为框架筒;由剪力墙组成的筒体称为薄壁筒体)。有壁圆筒)。 由一个或多个圆柱体作为主要抗侧力部件构成的结构称为圆柱体结构。 适用于平面或竖向布局复杂、水平荷载较大的高层建筑。
筒体结构分为筒框式、框筒式、筒中筒式、梁筒式四种结构。
(1)筒架结构
中心是抗剪薄壁管,外围是普通框架组成的结构。

(2)框架、筒体结构
外部为密柱框架管,内部为普通框架柱组成的结构。

(3)管中管结构
中心为薄壁管,外围为框架管组成的结构。
(4)束结构
它由若干个气缸并联组成一个整体结构。

2、各种建筑结构的特点及应用
(1)钢筋混凝土结构
1、钢筋混凝土的成分:
钢材+混凝土(混凝土:现代主要人造工程结构材料)
2、两种材料的基本力学性能:
钢筋——具有较高的拉伸和压缩强度,并且在损坏时表现出良好的延展性;
混凝土——抗压强度高,抗拉强度远低于其抗压强度(比例约为10%,破坏时具有明显的脆性特性)。
3、加固的基本原则:
结构中的钢筋处于受拉状态; 结构中的混凝土处于受压状态。
4、钢筋混凝土梁与素混凝土梁对比试验:
素混凝土梁——承载力低,一开裂就会破坏,且失效前无预警(脆性);
钢筋混凝土梁具有较高的承载能力。 混凝土出现裂缝后,其所承受的拉应力转移到钢筋上。
5、钢筋与混凝土共同作用的条件:
钢筋(材料)与混凝土的物理机械性能有很大不同。 它们可以组合起来一起工作,因为:
⑴ 钢筋与混凝土之间有良好的粘结力,能保证两种材料在荷载作用下协调变形,共同承受应力;
⑵钢筋和混凝土的温度线膨胀系数基本相同(钢材为1.2×10-5,混凝土为(1.0~1.5)×10-5),因此当温度变化时,两种材料不会产生过大的变形。 两者之间的结合力不好就会被破坏。
6、加固基本要求:
(1)钢筋的布置(即在结构中的位置)和数量经计算确定;
(2)钢筋端部应有锚固长度或挂钩(常称为结构要求)。

加固的作用:
(1)提高结构的承载能力;
(2)调整结构损伤形式。
7、混凝土结构的优缺点:
(一)优势
A、合理使用材料:
钢筋和混凝土的材料强度能得到充分利用,结构承载力和刚度比合适,基本不存在局部稳定问题,单位应力价格较低,对于一般工程结构来说,经济指标优于钢结构。
B、成型性好:
混凝土可根据需要浇筑成各种性质和尺寸,适用于各种复杂形状的结构,如空间薄壳、箱形结构等。
C、耐久性和防火性好,维护成本低:
钢筋有不易生锈的混凝土保护层,混凝土强度随时间增加; 混凝土是不良热导体,30毫米厚的混凝土保护层可耐火2小时,防止钢筋因快速加热而失去强度。
D、现浇混凝土结构整体性好:
通过适当的加固,可获得良好的延性,适用于抗震、防爆结构; 同时具有良好的防震、防辐射性能,适用于防护结构。
E、大刚度、大阻尼:
有利于结构变形控制。
F. 就地取材方便:
混凝土中使用的大量砂石可以很容易地在当地获得。 近年来,工业废料已被用来制造人造骨料,或作为水泥的附加成分以改善混凝土的性能。
(2)缺点:
A.自我重要性:
不适合大跨度和高层结构。
B、抗裂性差:
普通RC结构在正常使用过程中经常会出现裂缝。 恶劣的环境(露天、沿海地区、化学侵蚀)会影响耐用性。 也限制了大跨度结构中使用普通RC,不能使用高强钢筋。
C、有限承载能力:
在高层建筑的重载结构和底部结构中钢结构建筑特点,构件尺寸过大,减少了使用空间。
D、施工复杂,工序多
(模板、绑扎钢筋、浇筑、养护),施工周期长钢结构建筑特点,施工受季节、天气影响较大。
E、混凝土结构一旦损坏,很难修复、加固和加固。
(2)砌体结构
1、砌体结构的组成:砌块+砂浆
2、材料的基本力学性能:
砌体的抗压强度高,但抗拉强度低。
3、砌体结构的优缺点:
(一)优点:
就地取材较容易,防火性能好,化学和大气稳定性好,成本低,经济。
(2)缺点:
其重量重、强度低、砌筑工作重、砂浆与砌块粘结力弱、占用农田、影响环境。
(3)钢结构
1、钢结构特点:
(一)优点:
A、强度高,强度重量比大; 良好的塑性和韧性;
B、材质均匀,符合力学假设,安全可靠性高;
C、工厂化生产,工业化程度高,建设速度快。
(2)缺点:
钢结构耐热但不耐火; 容易生锈,耐腐蚀性差。
2、钢结构的应用:
(一)重型结构、大跨度建筑结构;
(二)多层、高层、超高层建筑结构;
(3)轻钢结构;
(四)塔桅等高层建筑;
(5)钢-混凝土组合结构。
我国是最早应用钢结构的国家。 但由于历史原因,现代建筑钢结构的应用和发展与发达国家还存在较大差距。
三、钢结构施工工艺:
工厂制造:验收、放样、加工、装配、校正、除锈、喷漆。
工地安装:扩大拼装、吊装就位、临时固定、最终固定。
4、钢结构初始缺陷:
几何缺陷:杆件初始弯曲和初始倾斜的长度误差。
材料缺陷:钢不是理想的均质、各向同性体。
