沧州天成装配式钢结构住宅项目采用矩形钢管混凝土框架+现浇混凝土核心管体系。 该系统具有节省钢材、横向刚度高、主体结构得分高、外防护、保温装饰一体化、精装修、室内空间大等优点。
自2017年12月住建部颁布GB/T51129-2017《装配式建筑评价标准》以来,对装配式建筑装配率的认定和计算有了明确的规定,也有了明确的规定。地方装配式建筑政策实施规定。 依据和指导。
根据《沧州市人民政府办公室关于加快发展装配式建筑的实施意见》和《河北省人民政府办公室关于大力发展装配式建筑的实施意见》(冀政办字[2017]3号)要求),沧州经济开发区、高新技术产业开发区被指定为装配式建筑综合实施示范区。 《沧州市人民政府办公室关于加快装配式建筑发展的实施意见》提到,竣工验收通过后,项目当地政府给予100元/㎡补助,建筑面积外墙预制部分(不超过规划总建筑面积的3%)不得计入交易容积率。 目前,沧州市规划部门要求新建项目建筑面积不少于15%为装配式建筑。 可选择装配式混凝土或装配式钢结构建筑。 由于混凝土预制构件工厂之间的距离超过200公里,最终选择了装配式建筑。 钢结构建筑。
01项目概况
沧州天成装配式钢结构住宅项目位于河北省沧州市,总建筑面积37266.99㎡,地上建筑面积33514.29㎡,地下建筑面积3752.70㎡ 。 项目共包括10栋住宅楼,其中7号楼采用装配式钢结构体系,地上27层,地下3层,层高2.9m,建筑高度78.6m。 采用矩形钢管混凝土框架+现浇混凝土核心管系统。

▲沧州天成项目7号楼效果
02主要结构
工程设防烈度为7度(0.136g),场地类别为Ⅲ类,设计地震组别为第二组,场地特征周期为0.55s。 主体结构采用矩形钢管混凝土框架+现浇混凝土核心筒,为组合结构体系。 框架柱采用钢管混凝土柱,框架梁和支撑采用H型钢,楼板采用钢筋桁架楼承板。 C50自密实混凝土采用矩形钢管浇筑,采用Q345B级钢管。 垂直交通核心筒采用现浇混凝土核心筒,交通核心筒占面积不到20%。

▲三维结构模型

▲三维结构标准层模型
该结构体系与钢管混凝土框架+钢板剪力墙结构体系相比装配式钢结构建筑优点,地上结构用钢量为75kg/㎡,而地上结构用钢量为钢管混凝土框架+钢板剪力墙85kg/㎡。 可以得出结论,本项目选择的结构体系使用了更好的钢材。 此外,该结构体系侧向刚度大,位移小,位移角小于1/800,风振舒适性控制较好。 但钢管混凝土框架+钢板剪力墙结构体系的侧向刚度较小,位移较大,位移角接近极限值1/300。

▲ 钢桁架楼承板应用比例
楼板采用钢桁架楼盖,钢桁架楼盖应用比例达到80%以上。 标准楼承板厚度为110mm,钢桁架高度为80mm,上下弦直径为8mm,腹板钢筋直径为4.5mm,底板采用0.6mm厚镀锌钢板,楼板采用C30混凝土。

▲钢筋桁架楼承板
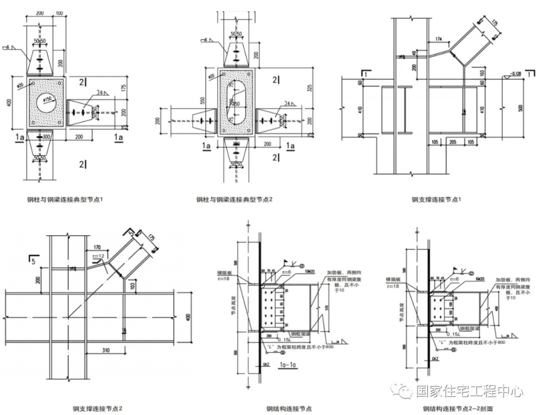
该工程采用矩形钢管混凝土框架柱。 框架梁、支撑均采用H型钢。 钢柱、钢梁采用螺栓焊接连接。 梁端部加楔形盖板进行加固。 钢柱拼接,钢支撑与钢柱、钢梁满焊,钢柱内填充自密实微膨胀混凝土。

▲钢结构连接节点
03 围墙及内隔墙
外防护墙采用300mm厚半埋式ALC蒸压加气混凝土条材,是一种围护、保温、装饰为一体的墙体材料。 外防护墙总面积482.4㎡(不含核心管剪力墙),标准层ALC条面积433.5㎡,区块面积49.2㎡。 ALC条壁面积占89.9%,大于80%。 因此,非承重挡土墙和非砌体项目可得5分,围墙、保温(隔热)、装饰一体化可得5分,共10分。
内隔墙总面积1034.4㎡,标准层ALC条墙面积538.2㎡,混凝土砌块墙面积496.2㎡装配式钢结构建筑优点,ALC条墙面积占52%,若大于50 %,内墙非砖石项目得 5 分。
外围ALC墙体以半嵌半挂的形式与主体结构连接。 壁厚为300mm。 钢梁侧面冷桥采用B04材质ALC板连接。 墙体上端与钢梁下方的焊接角钢采用钩头螺栓连接。 ,墙体下端采用钩头螺栓与混凝土板上预埋角钢连接。

▲外防护与主体结构连接节点
04装修及设备
项目采用全装修设计。 地板、墙壁、天花板均按照材料和制造规格进行装饰,内部设施设备也已安装完毕。 该项目将获得 6 分。
05组装率计算
根据《装配式建筑评价标准》装配式建筑评级表4.0.1条各项目的申请情况,计算各子项目的得分。 计算得到的装配率为71%,大于50%装配率的要求。 应该是公认的装配式建筑。

装配率计算表
06 结论
该项目的装配式钢结构住宅体系为混合结构的装配式钢结构建筑,为装配式钢结构建筑的发展和应用提供了多种可能。 该系统具有用钢量少、横向刚度高、主体结构评分高、外防护、保温装饰一体化、制作精良、可直接入住、室内空间大等优点。 装配式钢结构住宅体系易于实现工业化、标准化生产,配套墙体材料可采用新型节能环保材料,可回收再利用,符合可持续发展战略。 因此,推广装配式钢结构住宅必将促进住宅产业化的快速发展,提高我国住宅产业的发展水平,带动住宅建筑行业的创新。
作者:魏振飞1、魏梦涛2、何艳杰1、王艳2、刘国友2、程铸3
1:国家住房与人居环境工程技术研究中心
2:中国建筑标准设计院有限公司
3:华晨宝马汽车有限公司
