建筑幕墙按面板材质不同分为玻璃幕墙、金属幕墙、石材幕墙三大类。 无论哪种类型的幕墙,承重结构体系与建筑主体结构的连接通常是通过预埋件或后加锚栓的方式。 意识到了。 幕墙除承受自身重量外,还承受风、地震等荷载的影响。 因此,预埋件与建筑主体结构的连接是否可靠、耐用,直接关系到幕墙的结构安全和使用寿命。
嵌入式零件设计
1、预埋件与主体的连接强度直接决定整个幕墙的安全性,必须严格控制。 嵌入式零件设计时应注意以下几点:
(1)预埋锚杆、预埋板的尺寸和位置应严格按照《玻璃幕墙工程规范》(JGJ102-2003)和《混凝土结构设计规范》(GB50010-2002)设计)。
(2)注意锚筋长度不超过结构尺寸(如梁厚),防止锚筋暴露在结构外。
(3)爪形预埋件中A、B两种锚杆宜采用钢筋。 设计C、D型锚杆时,应考虑安装时锚杆之间的干涉以及锚杆与结构钢筋之间的干涉。 E、F型预埋件适用于需要防雷的区域。
(4)幕墙结构形式设计时应考虑预埋面板的尺寸。
2、注意预埋件的技术要求
(1)预埋件的技术要求是施工人员必须注意的幕墙特殊设计内容。 根据其受力情况(拉、剪、弯),计算确定锚板规格、锚杆直径、长度和焊缝厚度。 其中,确定了锚板规格、锚杆直径、长度和焊缝厚度。 板的最小厚度和锚杆间距、锚杆到锚板边缘的距离、预埋件的承载力、连接件与主体结构的锚固承载力必须满足通过计算或实物试验确认满足规范要求,但施工方法往往对预埋件的特殊设计重视不够,甚至忽视规范要求,仓促安排土建施工预埋。 这种缺乏科学设计、盲目预埋的现象,不仅造成大量预埋件费用,而且增加了幕墙的安全隐患。
(2)后装预埋件的技术要求不仅要考虑各类螺栓的性能差异,还要考虑母材的性能、锚固连接的受力性能、预埋件的类型等因素。连接结构以及任何抗震设防要求。 不得使用膨胀螺栓和扩孔螺栓进行拉力和边剪(边距C
3、预埋件的结构要求
旧规范JGJ102-96《玻璃幕墙工程技术规范》原样照搬GBJ10-89《混凝土结构设计规范》。 新规范JGJ102-2003在预埋件的设计上较旧规范进行了一些改进,以适应幕墙行业荷载较小的特点。 例如,要求锚板厚度与锚杆中心距之比≥1/8; 以及受拉锚杆长度减少到≥15d等要求,这些仍然不能满足在较小截面混凝土构件上安装预埋件的需要。 工程中经常要面临监理检查锚杆长度不符合规范的尴尬。 据了解,在幕墙行业,尚未发生过因预埋件抗力不够而导致幕墙损坏的事件。 这说明目前的预埋件是安全的。 这也在一定程度上反映出嵌入式部分比较保守,还有继续改进的空间。 。
预埋件的分类及组成
预埋件按其形成顺序分为前预埋件和后预埋件钢结构预埋件螺杆,其中预埋件又分为爪式预埋件和槽式预埋件。
预埋件
嵌入式零件是预先放置(埋藏)在结构中的组件。 它们是由钢板和锚杆制成的构件,在浇筑结构时留在结构中。
普通爪预埋件
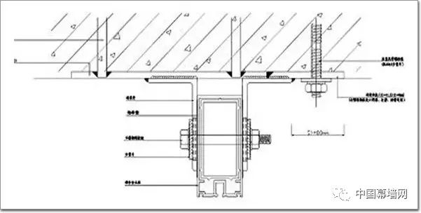
锚杆和锚板焊接而成,可制成直形、弧形或钩形。

预埋板预留开槽预埋件
这种预埋件在普通爪式预埋件的基础上增加了预留凹槽,连接非常方便。 即使预埋件的位置误差较大,也可以像普通预埋件一样进行焊接,具有更大的灵活性。 。

1.1.3 爪形预埋件(A至F为几种常见类型,如图所示)。

槽钢预埋件
金属沟槽可由钢板折弯、铸件、锻件制成。 锚杆和金属槽可以制成一体,也可以焊接在一起。 这种形式的预埋件具有体积小、施工方便等优点。 已实现国产化并形成系列化。 施工中,槽形预埋件长度常用300mm,锚杆长度为100mm或60mm。

槽钢预埋件与平板预埋件优缺点对比
槽钢预埋件是幕墙施工中常用的形式。 由于与平面预埋件相比具有诸多优点,槽钢预埋件在幕墙工程中的应用逐渐增多。
槽钢预埋件与平板预埋件相比的优点:
1、从生产加工角度比较
槽钢预埋件加工工艺简单,质量检验方便。 一般情况下,加工槽钢预埋件的效率是加工平板预埋件的三倍。
2、经济角度比较
槽钢预埋件价格便宜,节省工程成本。 一个槽式预埋件的重量约为2公斤,加上两个T型螺栓。 一套槽式预埋件价格约为25元。 平板预埋件的重量约为6公斤,价格约为60元。 槽钢预埋件的价格约为平板预埋件价格的一半。
3、从施工难度角度比较
沟槽式预埋件体积小,施工十分方便。 槽钢预埋件中的锚筋只有一排,槽钢尺寸小,不易与主体结构的钢筋发生干涉。 施工周期短,大大提高了施工进度。 板预埋件占用体积较大,锚杆通常布置为两行两列,极易与主体结构主筋发生干涉。 由于施工人员对主筋的重要性不是很清楚,偶尔也会将板预埋件埋掉。 锯断主体结构的主肋会给建筑物带来安全隐患。 另外,由于槽钢预埋件尺寸较小,当主体结构为薄板结构时,只能采用槽钢预埋件,而不能采用平板预埋件。
4、从安装幕墙龙骨是否方便的角度进行比较。
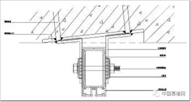
槽形预埋件与幕墙龙骨之间的转接件采用T型螺栓连接。 现场无需焊接,安装十分方便。 槽钢型预埋件通过T型螺栓与幕墙龙骨转接件连接,可在槽内自由水平滑动。 适配器与T型螺栓连接处沿垂直方向开有长孔。 该转接件在与幕墙龙骨的连接点处沿垂直于幕墙表面的方向开有长孔,从而实现了幕墙龙骨安装的三维调节,安装非常方便。 如图所示。 平面预埋件也可以进行三个维度的调整,但调整后需要焊接固定。 一方面增加了现场施工的难度,另一方面也增加了火灾的可能性。

槽钢预埋件与平板预埋件相比的缺点:
与平板预埋件相比,槽钢预埋件最明显的缺点是槽钢预埋件的承载能力比平板预埋件小很多。 槽钢预埋件设计抗拉承载力为32KN。 抗剪承载力设计值为23KN,而平板预埋件抗拉承载力设计值为140KN,抗剪承载力设计值为55KN左右。 因此,当幕墙跨度较大,或幕墙表面距结构面较远时,不宜采用槽式预埋件,只能选用平板式预埋件。
后来嵌入的部分
后预埋件为平板预埋件,采用普通膨胀螺栓、化学锚栓或贯穿螺栓(螺柱)与焊接封闭钢板固定。

后期预埋件的几种施工方法
①普通膨胀螺栓固定
②化学锚栓固定
③用贯通螺栓(双头螺柱)固定
④环向钢板焊接(常用于柱或梁)
⑤ 稍后制作土建结构,预埋件同时埋入。
⑥上述形式的复合形式。
预埋件如何埋设
预埋件按其在主体结构上的位置划分,可分为顶埋式、侧埋式和底埋式。 其中底埋式受力较不利,应谨慎使用。

后端预埋件只能通过膨胀螺栓和化学锚栓与主体结构连接。 由于回填预埋件的安装质量受现场施工条件和人员影响较大,不易控制,常常达不到设计指标。 特别是国家有明确规定钢结构预埋件螺杆,受拉部位不允许使用膨胀螺栓,所以尽量不要使用回填预埋件。

建筑幕墙预埋件施工要求
(1)标准JGJ102-2003第5.5条的相关要求:
1、主体结构或结构构件应能承受幕墙传递的荷载和作用。 连接件与主体结构的锚固承载力设计值应大于连接件本身的设计值;
2、玻璃幕墙柱与主体混凝土结构宜采用预埋件连接。 预埋件应在主体结构混凝土施工时预埋。 预埋件位置应准确。 当没有条件使用预埋件连接器时,应使用性能可靠的连接器。 通过试验测量并确定其承载能力。
3 由锚板和对称布置的锚筋组成的受力预埋件可按本规范附录C的规定进行设计。
4、槽式预埋件的预埋钢板及其他连接措施应按照现行国家标准《钢结构设计规范》GB 50017的有关规定进行设计,其承载能力应通过试验确定。
5、玻璃幕墙框架与主体结构采用后锚栓连接时,应符合下列规定:
(1)产品应有合格证; (钢材化学成分和力学性能检测报告、设计方法资料及出厂合格证)。
(2)碳钢地脚螺栓需要防腐处理;
(3)后加螺栓必须在现场进行单独拉拔试验和节点(组)拉拔试验。 试验时施加的载荷应达到设计载荷值的1.5倍,且无明显滑移。 必要时,应在检测单位进行极限检测。 拉拔试验。
(4)每个连接点后应增加不少于2个螺栓。 螺栓之间的距离以及螺栓与构件边缘的距离不应小于70mm。 应设计为螺栓受剪力的节点;
(5)螺栓直径应通过承载力计算确定,不宜小于l0mm;
(6)不宜对与化学锚栓接触的连接件进行焊接作业;
(7)地脚螺栓承载力设计值不应大于其极限承载力的50%。
6、幕墙与砌体结构连接时,连接部分主体结构宜增设钢筋混凝土或钢结构梁、柱。 连接主体结构混凝土强度等级不应低于C30。 幕墙不应附着在砖石上,更不用说轻质墙了。
(2)后锚杆施工要求
后锚栓广泛应用于建筑幕墙施工。 特别是在旧建筑改扩建中,有大量的幕墙工程,甚至全部采用后锚固件。 幕墙工程大量甚至全部采用后锚栓,施工质量控制不好,会给幕墙的使用带来安全隐患。
后锚杆的施工要求在规范《混凝土结构后锚固技术规程》JGJ 145-2004中有明确规定。
1、后锚栓包括膨胀螺栓、扩孔螺栓、化学植入钢筋等类型的螺栓。
使用后锚杆时,除了考虑各类螺栓的性能差异外,还必须考虑基材的性能、锚杆连接的受力性能、被连接结构的类型以及抗震设防的要求等因素。也可以考虑。
不得使用膨胀螺栓和扩孔螺栓进行拉力和边剪(边距C
化学植筋、植钉适用于抗震设防烈度不大于8级、受拉力、边剪力、拉剪复合力作用的结构和非结构构件的后锚固,锚固深度为遇见了。 连接。
2、注意地脚螺栓的施工质量。 对于锚栓的施工,标准《混凝土结构后锚固技术规程》JGJ 145-2004中规定:
(1) 地脚螺栓钻孔要求:见下表
孔径允许偏差
孔深允许偏差
垂直度公差
位置公差
≤0.5mm
膨胀及膨胀螺栓0+10mm
化学增强:0+20mm
≤50
5毫米
注意:A、钻孔时应避开主要受力筋,废孔应用化学锚固胶或高强树脂水泥砂浆填充;
B、钻孔后,用压缩机或手动气泵清除孔内的灰尘和杂物,然后用丙酮擦拭孔并保持干燥。
(2)地脚螺栓最小有效锚固深度hmin:hmin/d=6,d为地脚螺栓直径。
若采用d为12mm的地脚螺栓,其最小有效锚固深度应为72mm。 (设防强度为7级,混凝土C30),有效锚固深度不应包括墙面抹灰层和装饰层的厚度。
(3)注意钻孔最小边距:膨胀螺栓Cmin≥12d,膨胀锚栓Cmin≥10d,化学加固Cmin≥5d。 (d为螺栓外径)。
(4)考虑到焊接温度高对化学锚固剂的不利影响,应采取有效的冷却措施。
预埋件施工中的质量问题
(1)设计计算问题
一些幕墙工程,特别是中小型幕墙工程,对幕墙的专业设计重视不够。 有的设计只有几张简单的设计图,没有预埋件预埋位置图,也没有结构力学计算书。 虽然有的有计算书,但是没有预埋件的计算,也没有复习。
(2)平面预埋件的焊接质量
1、预埋件的常见形式是由锚杆焊接在锚板上组成。 (锚杆不得采用冷轧钢筋,当锚杆直径≥10mm时,应采用II级变形钢筋,包括月牙钢筋和螺纹钢筋。见《钢筋混凝土结构预埋件》JSJT-203)早期的方法是将钢筋弯曲,然后直接焊接到锚板上。 现在基本采用在锚板上钻孔然后塞焊的方法。 后者更可靠。 锚板和锚杆的焊接质量是预埋件质量的关键。 为确保焊接质量,焊接操作人员必须经过培训和认证。 嵌入式部件的接受度也很关键。 不仅检查外观质量,防止假焊、脱焊,还按规定检查锚板和钢筋的焊接强度。
2、预埋件大多埋离设计位置,无法使用。
原因是:
(1)预埋件在土建施工时已预埋,但后期因幕墙设计变更或修改而无法使用的。
(2)预埋件绑扎不牢,施工时混凝土浇筑、捣固时预埋件会产生位移、偏斜。
《玻璃幕墙工程技术规范》JGJ102-2003第10.2.3条:主体结构施工时,玻璃幕墙与主体结构连接的预埋件应按设计要求埋设。 预埋件位置偏差不应大于20mm。
3、后锚固件施工质量问题
(1)轻质墙上后锚杆的安装
有些工程楼面跨度较大,柱的挠度计算或强度计算失败。 因此,有的设计师在上下横梁之间增加了一个支点。 如果这个支点是钢筋混凝土(或钢结构)结构梁(柱)则有效。 一些框架结构建筑的砌体通常采用轻质填充墙。 如果附加支点放在轻质填充墙上,即使使用钢板和穿墙螺栓,也无法提供有效支撑。 因此,规范规定幕墙不应与砌体连接,更不能与轻质墙体连接。
(2)锚定矩阵不可靠、不可靠。 如果混凝土基材强度不够、余量不够,就会导致混凝土基材开裂,造成锚固失效。
(3)后锚杆偏移。 钻孔时经常遇到钢筋时跑偏、跑偏,孔内灰尘、杂物清除不彻底,造成锚栓在使用过程中松动。
规范规定:后加螺栓必须在现场进行单体拉拔试验和节点(组)拉拔试验。 试验时施加的载荷应达到设计载荷值的1.5倍,且无明显滑移。 必要时,应在检测单位进行极限检测。 拉拔试验。 试验结果应与设计计算进行校核,要求地脚螺栓承载力设计值不应大于其极限承载力的50%。
4、化学锚栓质量不高
化学螺栓在幕墙行业中常用于后预埋件。 20世纪90年代,化学螺栓产品从国外引进并应用于建筑工程。 近年来,国内不少厂家纷纷效仿并批量生产。 市场价格从十几元到两三元不等。 可以说品牌多、效果良莠不齐、质量差。 不一样。 化学螺栓的锚固胶起到粘结混凝土基材和锚筋的作用。 目前,市场上有各种化学成分的化学锚固剂。 最常用的三种类型是改性环氧树脂、乙烯丙烯酸树脂和不饱和树脂。 锚固胶的物理、化学性能直接影响锚固效果。 除少数知名进口品牌的宣传资料中包含锚固胶的耐久性、耐温性、耐冻融性等测试指标外,大多数厂家的产品介绍中都只有“耐酸碱、耐热、防火、低温敏感性”等模糊说法。
虽然现场拉力测试满足设计要求,但目前只能通过实验室预测锚固胶的耐久性,没有人能够明确解释高焊接温度对锚固剂的影响。 难怪业内人士对锚固胶的耐用性提出担忧。 对大量使用某些廉价产品提出质疑并表达担忧。
后预埋件的不锈钢螺栓应提供合格证、材料力学性能报告和力学性能复验。
在全国建设工程装饰奖(建筑幕墙类)复查中,发现部分受检项目后锚杆施工及现场拉拔力检测仍存在问题。
(1)部分工程无预埋件,采用各种规格化学螺栓作为后处理准备。 在可观察的部位,螺栓的外露长度各不相同,有的明显感觉到螺栓与混凝土基体的有效接触长度不够。
旧建筑改造时,如果墙面有灰泥层(一般为20mm),螺栓埋设的有效深度还应考虑灰泥层的厚度。 例如,在一个旧建筑改造项目中,原来的墙体是用贴面砖砌成的。 为了补偿结构的非垂直结构,墙漆层的厚度可增加至最大厚度7-10mm。 本工程若采用化学螺栓作为后装预埋件的安装应十分谨慎,应采用穿墙螺钉、锚板或其他可靠的连接方法。
(2)有的项目仅对实验室试块进行拉拔力测试,不进行现场拉拔力测试,或仅测试1-2种螺栓。 例如某工程使用了4种不同规格的化学螺栓。 ,并且只测试了2种类型的螺栓。
(3)螺栓现场拉力试验数量不足,部分项目仅进行一套(3件)象征性试验。
按照规定,螺栓现场拉力试验应对同一型号、同一规格、基本相同的部位进行,形成检验批。 批次数量为每批次螺栓总数的1‰,且每批次不少于3个。
(4)试验结果未与设计计算进行核对。 确保地脚螺栓的设计承载力不应大于其极限承载力的50%。

5、槽钢预埋件问题
槽钢预埋件具有可调节性好、连接灵活、无需焊接、易于埋设等优点。 它们已广泛应用于幕墙工程中。 但槽钢预埋件与其他预埋件一样,埋设时也容易发生移位、倾斜。 和进入结构墙。
关于预埋件偏差处理的意见
1、楼板预埋件位置偏离设计位置
当预埋件发生偏差时,可加大(或加长)预埋锚板来补救。 加长锚板后,用化学螺栓固定。

2、预埋件偏斜
当发生偏斜时,可以改变适配器的角度以适应埋设适配器引起的偏斜,也可以更换新的锚板。

3、预埋锚板下方有空隙
预埋件下方如有空洞,应用水泥砂浆填充。
预埋件虽然在幕墙投资中所占比例很小,但却起着至关重要的作用。 它们是幕墙构件存在的基础,是与主体结构连接的桥梁,是工程安全的关键。 它们在整个幕墙工程中具有很强的节点作用。 由于“经验不足”、“设计滞后”、“审核不力”等多种原因,幕墙招标往往滞后于主体工程招标。 结果土建已经开始了,但幕墙设计不清楚,预埋工程就漏掉了。 作为部件与主体结构同步施工的关键节点,土建根据粗略的建筑设计草率委托预埋幕墙,预埋件位置偏差过大,造成严重浪费。 有的主体已封顶,幕墙施工刚刚开始,不得不全部采用后装预埋件,不仅使工程造价成倍增加,而且还造成结构破坏等一系列问题并且质量不稳定。
因此,掌握幕墙工程的节点规律,科学选择幕墙预埋件,不仅关系到建设工程的投资成本,还关系到幕墙工程的后期施工和质量安全。