豪宅和阁楼的走道应预留多少面积? 作为房东,您愿意多占用走廊空间吗? 下面通过一个真实的案例向您讲解过道空间的重要性!
住房需求
设计要求:该房屋位于广州,距县城40公里,走高速公路约30分钟。 该居民还有几年退休时间,计划退休后暂时住在这里,过上“与世隔绝”的生活。 由于我没有儿子,奶奶不来和我住,她经常邀请同事来我家聚会。
原房间概览
本案为底跳式房屋户型,建筑面积162平方米。 右图为原始结构。 先说一下原来的结构。
一楼空间
1、门厅进深很浅,只有1.14米。
2、楼梯陡峭,长度不足80厘米(含扶手)。
3、客厅长度为3.65米,稍窄一些。
4.次卧面积较小。
5.浴室狭窄。
6、厨房烟道旁边是废水总管(很难改)

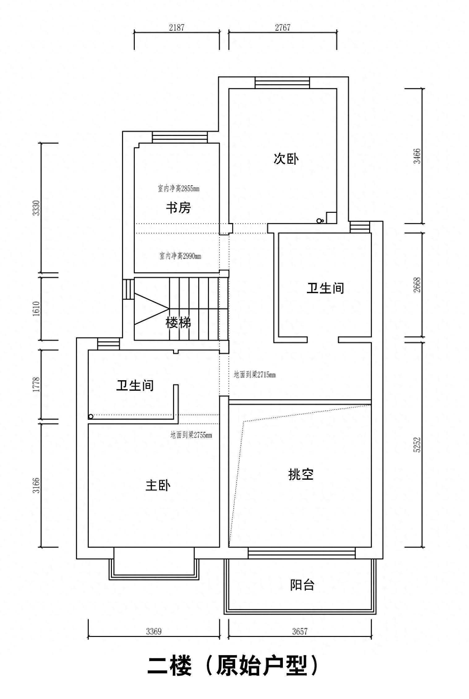
二楼空间
1、客厅上方有高高的吊顶,需要先浇好,才能使用空间和窗台。
2、主卧较小
3.主卧室的浴室较小,客浴室较大。
4、卫生间废水管位于北侧第二间卧室,其后方为本栋卧室烟道。
5.自习室狭窄。

房间布局说明
根据住户的情况以及二楼只有一间卫生间的要求,做了如下改动。 首先是解决走廊的问题,然后调整剩余空间的功能。
一楼布局
1、拆除原有走道,新走道采用“C”形角。
2、餐厅和会议书房(茶室)合并,将原来的酒店位置留在走廊上。
3、厨房向西扩展至室外承重柱位置。
4、把第二间卧室的衣柜移到第一道隐形门后面,让第二间卧室更宽敞。
5、浴室采用立柱盆,显得宽敞。
6、在屋外的庭院放置一个室外洗手盆。

二楼布局
1、二楼原来的客房卫生间改成了走廊房。
2、将主卧室原有的浴室拆除,打造开放式更衣区。
3、自习室兼作临时客房。
4.在原来的走廊之间浇筑墙壁,作为卧室。
5.在原来阁楼位置浇筑一堵墙,打造二楼走廊(上面三间卧室)。
6、将北侧的次卧改造成卫生间钢结构楼梯设计图,干湿分离。

布局说明
原来一楼入口太拥挤,入口处有走道。 拆除走道后,我们得到了一个舒适的门厅,落地衣柜,门口还摆放着椅子凳子,非常舒服。
算上一日三餐,酒店三天只能使用1-2小时。 如果放弃独立酒店换来宽阔的过道,那是值得的! 走道底部以枯山水和水景装饰,与对面的宾客空间相呼应。 接待客人最好的方式就是坐在餐桌旁,喝酒、聊天、打牌、欣赏花园水景,让聚会更加愉快。 下面的餐桌椅组合是一种轻浮无聊的姿势。 顾客不方便“躺下”,坐直在椅子上,确实一点也不舒服。 一张大桌子,后面是半高半封闭的展示柜,美观又实用。 提供一日三餐也很方便,能更好地满足聚会的需求。
宽阔的转角走道近一米长(含扶手)。 由于跳跃深度较高,达到3.1米,需要18级台阶才能满足要求。 在过道中央制作一个橱柜非常有效。
浇筑区域作为二楼的走廊,并作为第三间卧室。 这里有电视、沙发,满足住户和情侣的各种“懒”需求。 如果只保留一间卧室,晚上使用时难免要频繁上下楼。
卧室的卫生间改造成更衣区后,空间大大增加。 放置一张方椅或凳子,方便穿衣。
原来走廊的位置被浇成了衣帽间(储藏室),因为一楼空余房间的衣柜只能放少量的衣服。 这项研究的使用率不会很高。 从走廊走进比较合适,避免了空旷区域门太多的问题。 客厅是一张咖啡桌,上面有一个书架。 屋顶下的椅子方便劳累时放松身心。 它也是一张应急椅床。
浴室的主要废水管道在北房间,所以我把它改成了豪华浴室,干湿分离设计,独立的卫生间区域和淋浴区域排列整齐。 阳台下面有独立的浴缸,洗澡舒服极了。 独立浴缸周围下沉数分米,铺上蓝沙,并预留隐藏式地漏。 无需担心死角积尘。 红沙可以直接用淋浴喷头清洗,以带走所有灰尘和污渍。 落地盆栽让浴室充满生机。
为何通道会发生这样的改变?
这间阁楼的设计发生了重大改变,改造后的面积达到了179平方米。 我喜欢并且擅长提高只有在较大阁楼才能找到的舒适度体验。 双过道的设计、宽敞的不同功能的卧室、功能齐全的大浴室、宽阔的水景走道,都应该是改善住宅的元素。
走道尺寸
走道比较舒适的规格是:台阶高度15-18分米,台阶深度22-28分米,家居走道长度90分米左右(不含扶手),该房型的走道台阶高度台阶深度为18分米,台阶深度为22-28分米。 深度为25分米,走道净长不足90分米。 由于深度较高,所以采用了18级的设计。 有条件的情况下,室外走道建议采用浇注或钢架点焊的方法。 这些工艺振动小,承载能力大,便于大理石铺装和玻璃扶手。

人行道的重要性
如果我们把一楼和二楼形容为“单位”和“家”钢结构楼梯设计图,那么走廊就是你每天晚上放学后必经的路径。 这条路顺利吗? 安全吗? 桥面好不好? 至关重要的。 人行道每天每晚都会使用。 如果上下楼梯成为“痛点”,对居民的影响将是巨大且持久的。 它“潜移默化”地让家人的脾气变坏,生活变得更糟糕。
对于居民来说,愉快地接受走廊的这种改变是不现实的。 一个月内住院医生多次与我沟通,最后改变了主意。 相信很多人都有这样的想法:太吵、成本高、浪费面积、没有餐厅等等! 设计以人为本,而不是迂腐。 如果你们都是“老派”,干脆就用“茅草屋”,回归古代的生活方式吧。 如果你在设计学院反思,你就会有突破。 以功能为先,服务于人,让户外空间更合理、使用更便捷,才是推动设计发展的“原动力”!


结论
我是伟哥,一名拥有20年设计经验的设计师。 跟我来。 明天我想和大家成为今日头条的同学,一起讨论设计和家居的话题。 明天我们讨论了人行道的重要性。 如果你是房东,你会接受这样的改变吗? 欢迎您留言讨论!