该图为位于云南大理的华新水泥厂的原料预处理温室。 下部结构为框架结构,上部结构为拱形波纹钢屋盖结构建筑图。
本图所示的拱形玻璃钢木结构建筑,跨度21米,长46米,建筑面积约1000多平方米。 现在请捷达技术人员吴世宽先生来看看详细情况。
如下图所示,为拱形波纹钢屋面建筑结构设计说明文件。 对于本图中的钢结构和拱形波纹钢屋盖部分,我们可以看到车棚钢结构图纸,设计说明中明确提出了以下要求。
1、本工程所用钢材除满足国家材料规范要求外,还应满足以下要求:
钢材屈服强度实测值与抗拉强度实测值之比不应小于0.85。
钢材应有显着的屈服台阶,屈服强度不应大于20%。
该钢应具有良好的可焊性和可接受的冲击硬度。
钢材的质量等级必须为合格及以上。
2、本项目檩条托盘及二次预制构件材质为Q235-B。
3、除非图中另有说明,所有结构加强板和连接板的长度均为6mm。
4、墙檩及檩条支撑、角撑、角柱、刚性山墙等二次连接宜采用普通螺栓。 普通螺栓应符合国家现行标准。
《六角螺栓C级》(GB5780)。
5、檩条:墙体采用Q235热轧C型屋架。
6、屋顶选型、材料及施工要求
6.1 拱圈采用拱形波纹钢屋面(深豆红),必须由有资质的专业公司设计、施工。 投标确定后,拱形波纹钢屋面厂家需要提供外墙下部荷载参数,以方便设计。 人员检查上层建筑和地基。
6.2 屋面拱脚防水要求:
山墙安装完毕后,拱脚内填充C20细石混凝土,拱脚内外均用沥青防水。 屋顶拱脚处理高度不大于500mm。
6.3 屋面施工要求:
(1)拱形波纹钢屋面必须采用专业设备成型。
(2)拱形波形钢屋面必须由专业的拱形波形钢屋面施工公司施工。 (3)拱形波形钢屋面吊装到位后,用自攻螺钉将拱脚与连接钢螺栓连接。
(4)用封边机将每两个单元紧密连接。
(5)。 自攻螺钉型号:6.3X25,每块单元板每端自攻螺钉不超过5个。
7、混凝土预埋件应按图中规范预埋,不得有遗漏。
8、熔池质量等级:所有厚板对接焊池均焊透。 翼板与腹板对接焊缝位置错开应大于200mm。 端板与柱、梁翼缘、纵梁连接的焊池为全熔透焊缝。 渗透坡口焊,如果梁与柱为刚性连接,柱翼缘与主梁在梁上下翼缘500以内应采用全熔透焊,其余宜采用五级。
9、图中未标明的焊脚规格均为6mm;
10、钎焊Q235钢或HPB300级钢筋时,采用E43xx型焊丝; 焊接Q345钢或HRB335级或HRB400钢筋时,采用E50xx型焊丝; 当 Q235 钢或 HPB300 级钢筋与 Q345 钢或 HRB335 或 HRB400 级钢筋钎焊时,请使用 E43xx 焊丝。
11钢结构喷涂:
11.1 除锈:除热轧预制构件外,钢构件在生产前应进行表面除锈。
11.2 防腐涂层:以红丹漆为底色,再涂深蓝色防锈漆。
11.3 下列情况不需涂底漆:
(1)埋入混凝土中。
(2)与混凝土的接触面。
(3) 放置钎料。
(4)螺栓连接范围内的构件接触面。
12、所有钢结构预制构件的制造精度、焊缝质量检验、安装、运输、防锈等工艺均应符合国家标准(GB50205-2001)的要求。
13、建设过程中,各专业要密切配合。 如发现碰撞、遗漏等问题,请及时联系设计师及相关人员研究解决。
14、未经技术鉴定或设计许可,不得改变建筑物的用途和使用环境。 上述未尽事宜,按国家现行施工及预检规范执行。

下图为拱形波纹钢屋面建筑底层布局。 从下图中可以看到,该建筑的跨度为21米,长度为46米。 水平方向有4个基础,纵向有7个基础。

下图为拱形玻璃钢山墙结构屋顶平面布局。 可以看到,屋顶中部总共需要安装两条空心灯带。
这种采光条的安装过程通常是:首先我们将整个拱形屋顶抬起,只留下部分空心采光条,最后安装两条彩色灯条。

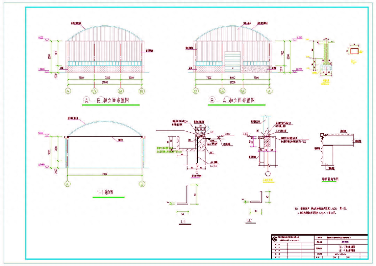
下图为拱形钢屋架建筑的轴向立面图。 我们可以看到它的外墙高度为9米,整个拱形屋顶的高度为4.2米。 同时我们注意到其外墙需要安装90型瓷砖。

下图为拱形波形钢屋面AB轴立面布置图和BA轴立面布置图。 我们可以看到,在BA轴立面布局的右侧,需要安装一扇门,方便物料车辆进出。 门位于拱形屋顶的左侧,需要安装门扇。
山墙墙采用与屋顶结构相同的914-610单元板,并与此单元板组装在一起。

根据我们往年的施工经验,1000平方米以下的拱形屋顶一般采用长度为1.2mm、强度为TS280GD的彩涂板。 颜色由房东决定。
一般情况下,此类建筑的施工周期约为5天,其中整个屋顶的现场制作、组装、安装需要1天车棚钢结构图纸,2至3面墙的安装时间通常需要3天,所以包括初检在内,一般一周内整个屋顶就可以交付。