01.外墙-金属板施工安装
首先我们先来了解一下什么是金属板?
它是以金属材料为基材,如铝及铝合金基材、钢板基材、不锈钢基材、铜基材等,表面经过不同工艺加工而成的装饰品,如喷漆、烤漆、转印等片材。

具有易加工、成型性好、耐火极限高、色彩丰富、形态多样、可塑性强等特点。 分类为:铝板、钢板、不锈钢板、铜板、水波纹板等。
常见的金属板有:
1) 铜
黄铜呈白色,铜合金呈白色、银黄色、青色。

价格:1000~6000元/㎡。
2) 碳钢
碳钢板是不易生锈的钢材。 它在普通不锈钢表面产生一层氧化膜,因此与外界隔绝,不发生物理反应,保持金属光泽。

价格:300~400元/㎡(1mm厚)。
3)钛锌板
它以锌为主要材料,添加铜、钛金属制成。 表面为哑光,常用颜色有黑色、蓝灰色、棕色和黑色。

价格:500~1250元/㎡。
4)铝单板&铝塑复合板
铝单板是采用铝合金薄板经过络合、涂层技术制成; 铝塑复合板由金属(表层)和非金属材料制成。

铝单板、铝塑板可制成任意颜色,表面可进行穿孔、镜面、拉丝、仿木纹、防锈、幻影等处理。
价格:铝单板250~280元/㎡(3㎜厚氟碳涂层),铝塑板130~150元/㎡(3㎜厚氟碳涂层)。
02.外墙-金属板施工安装
目前,市场上两种主流的外墙安装方式是:粘贴式和悬挂式。
1. 粘贴型

金属板粘贴工艺是将其粘贴在基板上,通常长度小于3mm。 但大多数3mm以下的金属板材平整度都不是很高。 大面积使用金属板墙裙时,需要使用底板来辅助墙裙的平整度。

轻钢龙骨墙体粘贴金属板△

金属板截面节点图△
如果金属板的宽度小于3mm,就会脱离基板的限制。 即使面馆使用的是单块金属板,考虑到平整度问题,仍然建议点焊或者螺丝固定。
通常金属板的尺寸为1200mm。 例如,一些超长的金属板需要悬挂安装。

粘贴金属板的轻质砖墙△

金属板截面节点图△
粘贴工艺基层采用木胶合板,安装简单方便。 适用于板宽较薄的材料,如碳钢板、铜板等,壁厚1.2~1.5mm。
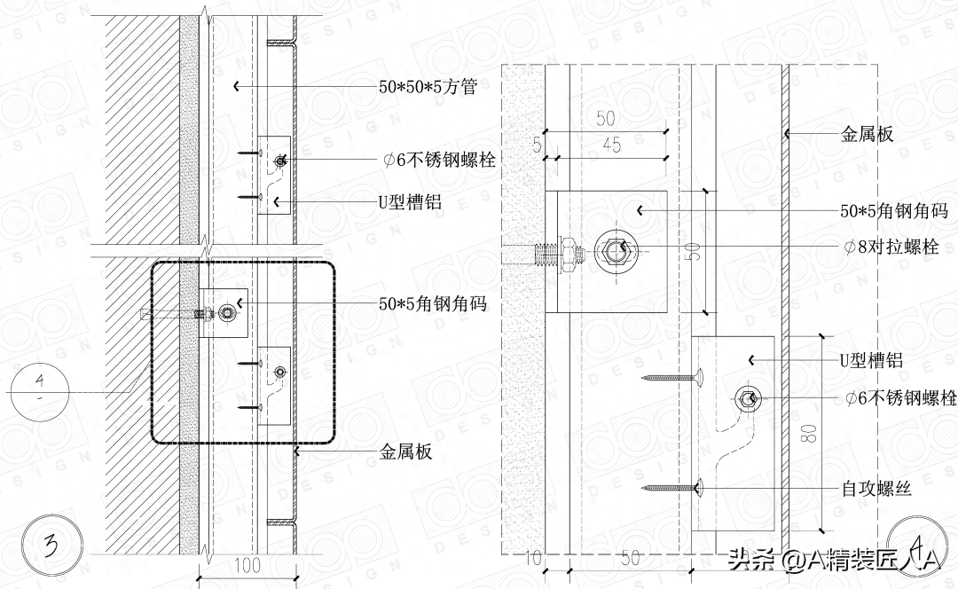
2、悬挂技术

1)工艺流程:
检测弹线→固定钢合页→固定竖龙骨→安装U型槽铝材→安装金属板→清洁保护

△金属板工艺立面图
2)施工技术:
固定钢铰链时,应根据龙骨位置和铰链宽度估计钢铰链的位置。 用冲击钻打孔后,用膨胀螺丝固定铰链。 钢铰链应预先用桌子钻孔。

金属板截面节点图△
竖龙骨的固定采用螺钉将竖龙骨与铰链固定。 竖龙骨采用50mm热轧方管制作,还需要估算铰链宽度和钻孔。
提醒:垂直龙骨安装完毕后,不要急于拧紧螺母。 即可完成大面积竖龙骨的基本安装,整体调直、找平,确认无误后拧紧螺母。

金属板节点图△

金属板纵剖面节点图△
安装U型铝槽时,根据金属板手链的缺口确定槽铝的位置,然后用自攻螺丝固定槽铝,中间用螺丝作为金属板挂点。

金属板截面节点图(内角)△

金属板截面节点图(正角)△
金属面板自下而上安装,接缝的垂直度、平整度、高差必须符合施工规范。 另外,安装后,金属板的外角要用木胶合板或泡沫板保护。
向上滑动查看
03.顶面-金属柜安装施工
1、金属吊柜工艺

金属吊顶柜工艺CAD节点方法△

金属吊顶柜工艺三维节点法△
1)铝天花插座位置交错有序,板缝平直,无错位,宽度一致; 阴阳角方正,异型板排列位置合理美观,表面光滑,接缝、接口严密,需平滑定向安装;


2)家具、排气扇等需要安装在整个页面的中央或横跨整个页面;
3)吊柜的开口必须在地面上进行。 吊顶安装完成后禁止开孔,否则会导致吊柜变形。
2、铝柜工艺
1)卡扣式暗装龙骨铝柜
①工艺流程:

②施工步骤:
弹力线:
用水平仪在卧室每面墙(柱)的角上找一个水平点,根据建筑标高弹出一条水平线,从该水平线测量到橱柜的设计高度,弹出一条水平线沿墙(柱)在橱柜成品面上划线。 然后根据橱柜平面图在顶部或地板上标记主龙骨的位置。 主龙骨应从柜体中心向两侧划分,宽度不宜小于1000mm。
注:柜体预设计必须在弹线前完成。 综合考虑施工竣工效能,必须与机电安装等专业密切配合。 家具、通风口、沙井、烟雾探测器、喷淋头等的开启位置必须提前规划好,最后确定净空位置和柜体高度,防止返工。

复制水平点,弹出1米水平线,弹出柜子水平线△
固定挂杆:
首先,在顶面上标记主龙骨吊带的固定点。 主龙骨应从柜体中心向两侧划分,最大宽度为1000mm。 吊带宽度不应小于1200mm。 然后根据主龙骨的位置和位置,用冲击钻在顶面钻孔。 根据吊杆的悬挂宽度和定位点钻孔。 将吊带一端的膨胀螺丝拧紧,另一端安装吊环,用支撑杆将吊带的膨胀螺丝一端与墙壁连接固定。
注:当主龙骨与屋面距离小于1.5m时,应加反向支撑,大于2.5m时,应加转换层。

在吊具位置钻孔,在吊杆上安装膨胀螺丝,在吊杆上安装膨胀螺丝△

吊带安装,挂手环钢结构节点板,用支撑杆安装吊带,顶部吊带安装完成△
安装边龙骨:
边龙骨应按设计要求安装。 沿墙(柱)的水平龙骨线应根据不同的外墙材料采用自攻螺钉或膨胀螺钉固定。 宽度不应小于500mm,端部不应小于50mm。

墙面固定点打孔,打螺丝孔,安装侧龙骨(电锤或射钉枪)△
安装主龙骨:
主龙骨应挂在吊索上。 采用单层龙骨时,龙骨与龙骨的宽度不应小于1200mm,下缘龙骨与平行墙的宽度不应小于300mm。 采用双层龙骨时,龙骨与龙骨的宽度不应小于300mm。 宽度不应小于1200mm,龙骨至板端部的宽度不应大于150mm。
根据分档线的位置将主龙骨连接到组装好的挂手链的吊带上,充分拉动纵横控制标高线,从一端安装,随走随调。 主龙骨之间采用连接件连接; 主龙骨与卧室长度平行安装,并应同时拱形。 拱高应符合设计要求。 若设计无要求,应按短跨的1‰-3‰计算。

主龙骨安装、主龙骨螺母拧紧、主龙骨高度调节△
对于大面积异型窗框,当异型件或小型设备影响标准宽度时,应将工字钢或型钢钎焊到桥梁或钢结构框架上(全面涂防锈漆),并应牢固连接到墙壁。 。

桥梁焊接过程、桥梁焊接完成、钢结构框架焊接完成△
安装三角龙骨:
三角龙骨的宽度根据铝材的设计尺寸来构造。 三角龙骨手链预先安装在三角龙骨上,然后将三角龙骨以手链连接的形式固定在主龙骨上。 龙骨之间的连接通常采用连接件连接。 调整时应注意使其从一端到另一端垂直、水平平直。

安装三角龙骨手链,安装三角龙骨,用连接件连接龙骨△
全面校准子龙骨的位置和平整度。 子龙骨两端应靠在L型边龙骨的水平主梁上; 主、副龙骨悬挑端不应小于300mm,否则应加吊索或挂件; 龙骨应加长,采用对接接头钢结构节点板,相邻龙骨的接头应错开。

龙骨搭接法、龙骨悬挑端部安装法、龙骨接头对接法△
铝安装:
屋面板根据设计选用,将铝材扣入三角龙骨并调整平整度、水平度、垂直度。 安装时应注意表面方向一致,保证图案的完整性; 家具、烟感器、喷淋头、出风口格栅等设备在铝材上的位置应合理、美观,与铝材的连接应一致。 ,紧的。

柜体点位提前定位安装,铝板单片安装流程,铝板单片安装流程△

铝材整体顺序安装、铝板调整安装△
2)铝单板吊顶施工样本
①工艺顺序:
规划工作→现场铺设→吊索安装→轻钢主副龙骨制作→连接件固定框架→固定框架→安装铝单板→封闭处理→铝单面处理
②施工步骤:
弹力线:
根据楼层标高水平线和设计标高,在墙面周围弹出屋顶标高水平线,找到卧室中心点,并沿屋顶标高水平线与卧室中心点在墙上画出龙骨台阶位置线作为中心。

铝单板吊顶总施工图△
安装主龙骨吊索:
打好屋顶标高水平线和龙骨位置线后,确定吊索上端标高,安装预先加工好的吊索,用膨胀螺丝将吊索固定在屋顶上。 吊索采用Paragon工字钢,角柱宽度控制在1200mm范围内。
安装主龙骨:
主龙骨通常采用C38轻钢龙骨,宽度控制在1200mm范围内。 安装时采用与主龙骨配套的吊挂件和吊带。

铝单板吊顶总施工图△
安装边龙骨:
根据吊顶高度要求,用水泥钉固定墙体四周2525xx2525mm的烤漆龙骨,水泥钉宽度不小于300mm;
安装副龙骨:
根据铝天花的尺寸规格,安装与板材相匹配的子龙骨,子龙骨通过吊挂手链挂在主龙骨上。 当子龙骨的宽度需要加多根龙骨时,在吊挂子龙骨的同时,用子龙骨连接件将两端连接起来,先拉直,然后固定;

断面模型△
安装铝:
安装铝天花时,应在装配区中部沿子龙骨方向垂直画一条基准线。 两侧安装基准线时,要轻拿轻放,沿着翻边部位轻轻压住方板两侧。 卡入龙骨后,用力推紧。
③注意事项:
铝材长度的选择;
在吊顶安装铝单板时,常常会用到密封缝。 注意铝单板的安装顺序。
3、复合金属板柜体技术

复合金属面板柜体工艺△