△星标☆dop设计,不错过每一篇有用的文章


dop设计(ID:dopdesign)原创
作者丨dop设计
编辑| 玲子
旋转走道作为走道行业的领军人物,是网红户外设计项目中必不可少的元素之一。 除了满足空间的交通功能外,还可以提高空间的美观度,具有很大的装饰效果。
下面,我们从以下几个方面来看看钢结构旋转走道从设计到实施是如何进行的:
1、什么是钢结构旋转走道?
2、钢结构旋转走道的图纸怎么画?
3、钢结构旋转步道落地时应注意哪些事项?
4、如何完成钢结构旋转步道的二次推进对接?
ps:欢迎各位男同伴在评论区留下不同意见。 如果对你有帮助,记得关注我! 文末有示例节点,可以申请!
01.什么是钢结构旋转走道?
丨联系VX:dop050回复“公众号”入群

来源:
在做钢结构旋转走道工程时,首先要对最基本的内容有一个大概的了解。 下面,我们就来看看什么是钢结构旋转走道。
1. 概念
钢结构旋转走道一般是指以钢预制构件为主要结构支撑的弧形走道。

来源:
△采用钢预制构件(双曲主梁)作为主要结构支撑
例如,走道由 L 形装置结构(每个台阶一个)组成,悬臂到由点焊钢框架制成的螺旋中心梁上。 中心梁由具有大惯性的空心管结构产生,采用10mm厚的优质厚板。

来源:
△主体钢结构示意图
但只要主体结构(主要是梁、柱)是钢结构的旋转走道,就称为钢结构旋转走道。

来源:
2. 特点

来源:
A。 装饰性强,设计多变。
b. 结构稳定、坚固安全、耐用性强
C。 使用起来更加灵活,并且节省了大量的空间。
d. 施工方便,可大大缩短施工时间。
e. 该结构体系可独立承受荷载钢结构楼梯详图,适用性广。
3. 类型

来源:
一般来说,钢结构旋转走道可以根据不同的结构方法和不同的材料成分进行简单的分类。
A。 按不同结构方式分类
钢结构旋转走道最常用的两种结构方式是中心柱式和板式。
①中心型
中心柱式由铁管柱、预制扇形踏板、钢平台板和围栏组成。 平面是以中心柱为圆心的同心圆,外观是螺旋状的三维空间曲线。

来源:

来源:
②板式
板式旋转走道由内外空心曲梁、底部封板、踏步板和围栏组成。 该平面由两个同心圆包围,其外观是一条双曲螺线三维空间曲线。

来源:

来源:
b. 根据材料成分不同分类
根据材料成分不同,钢结构旋转走道可分为全钢材料和钢结构主体与其他材料相结合两种。
①全钢材质
主要支撑结构、楼梯预制构件、装饰材料等材质均采用钢材。

来源:

来源:
② 钢结构主体与其他材料的组合
主要支撑结构采用钢材,其他部分如台阶、栏杆、栏杆等走道预制构件及墙裙可选用木材、玻璃、石材等。

来源:
△钢+玻璃组合功效建议

来源:
△钢材+大理石组合治疗效果建议

来源:
△钢+木+大理石组合的功效建议
4.相关规格
设计必须符合现行规范标准,并按照相关内容进行设计、绘制等。 这样,比较常用的与过道设计相关的规范图集有以下几种:
A。 《民用建筑通用规范》GB55031-2022

来源:
b. 《建筑防火通用规范》GB55037-2022

来源:
C。 《民用建筑设计统一标准》GB50352-2019

来源:
C。 《民用建筑设计统一标准》图22J403-1

来源:
e. 《楼梯护栏(1)》22J403-1

来源:

△2小时学会旋转走道的轮廓和建模△
△扫码会员免费学习观看
02.钢结构旋转走道怎么画?
丨联系VX:dop050回复“公众号”入群
了解了钢结构旋转走道的基本内容后,我们就可以根据场地条件和方案设计来勾勒出走道的轮廓。 具体步骤如下:
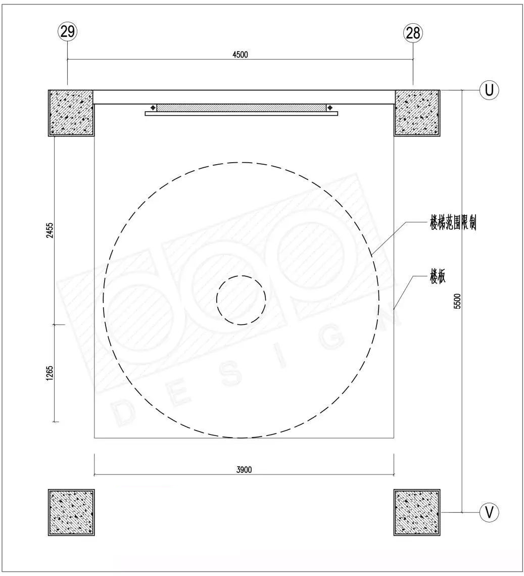
1. 收集测绘数据
确定建筑进深、楼梯台阶数量、楼梯结构、楼梯长度、中心点、半径、起止台阶位置等,这些是主要的基本轮廓条件。
还需要根据单个扇形台阶、固定走道出口、规格等来推断旋转走道的平面图。

2. 检查碰撞并启动
可以根据通道规范和“判断旋转走道是否会撞头”的公式进行碰撞检查,以调整平面图。


3、三维辅助审议
使用投影图绘制并验证标高,然后将CAD平面图导出到SU或其他建模软件中进行审查和验证。


4.CAD绘图性能
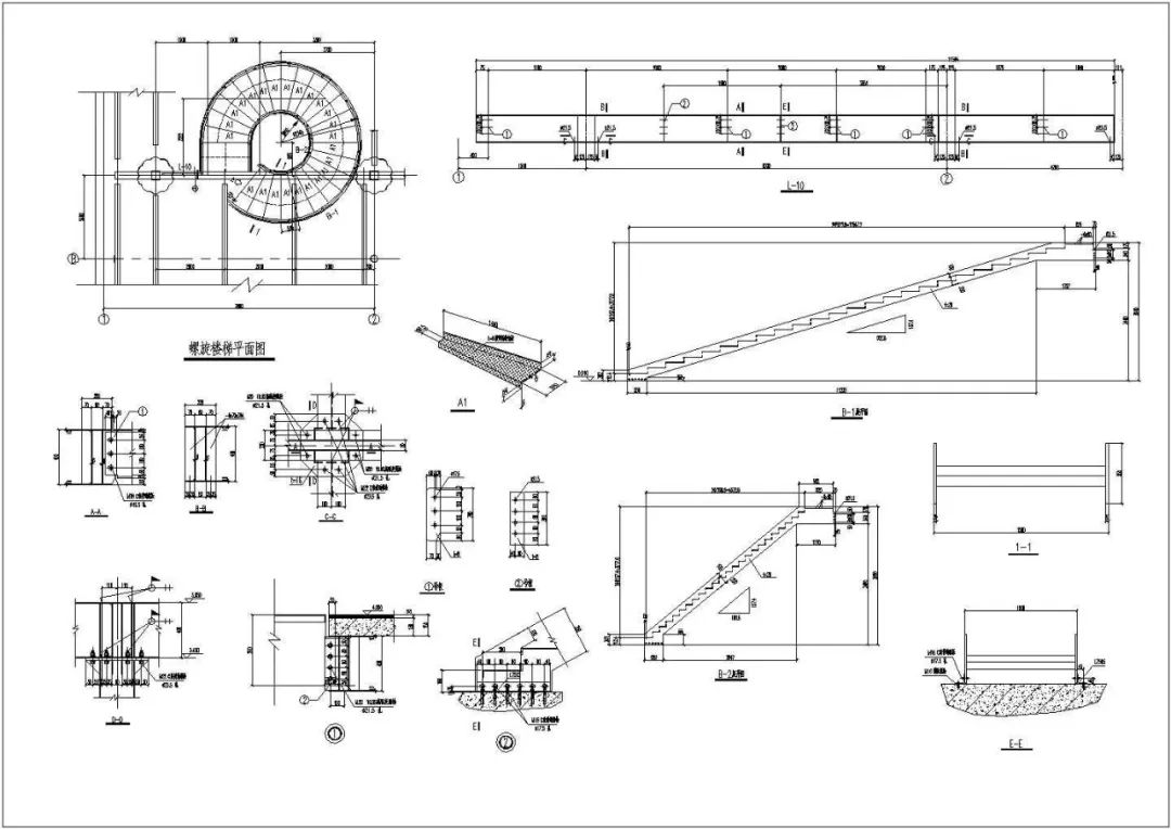
确认方案可行后,按照“三视图”原则绘制施工图。

A。 画出走道的外框

b. 绘制平面图

C。 绘制立面图

d. 绘制扶手

e. 深化调整

03、施工时应注意哪些事项?
丨联系VX:dop050回复“公众号”入群

来源:
是不是有些人认为完成一套合格的推进图纸后就可以等待钢结构旋转步道的完美实施呢? 不好了!
想要进一步实现钢结构旋转走道的实施,不仅仅有一套合格的推广图纸,最重要的是专业的结构设计进行计算和验证,我们来看看具体原因。
1. 安全考虑
首先,我们需要了解一个概念:在室外设计中,任何涉及结构梁荷载估算、结构加固、结构修改等问题都需要结构工程师进行相关核算和验证。

来源:
△钢结构估算分析
作为户外设计师,我们辛辛苦苦画出来的旋转步道图纸往往只能满足功能和美观的要求。 至于是否符合安全要求,我们还要将相关图纸和施工资料提交给结构单位核算。

来源:
△钢结光面纸
在计算过程中,结构设计师可以随时提出变更,例如:旋转走道需要设置中间平台、底部需要减少木柱的承重、所用材料不符合要求等。标准要求、需要更换等
室外设计师根据反馈意见对图纸进行修改,直至图纸符合施工标准。
2、资质要求
以上内容阐明了旋转走道二次进图需要结构专业人士配合完成的简单流程。
目前市场上,大多数户外设计师往往不具备承接旋转走道设计的资质。 因此,面对这些情况,他们往往将旋转步道的设计+施工单独外包,让专业人员来做。

来源:
那么,专业资格要求有哪些呢? 我们来看看某钢结构旋转步道项目设计与施工招标公告的内容:

来源:
从上述招标公告中我们可以看出,只有具备钢结构专业承包五级及以上资质、钢结构设计甲级及以上资质的企业才能承担钢结构旋转走道的设计和施工。
也就是说,普通的户外设计公司没有资格出具这样的图纸,需要更专业的人来推广。 而更专业的人往往来自专业的钢结构走道厂家。

来源:
△结构工程师晋升
可见钢结构楼梯详图,所有的旋转走道设计绝不仅仅是户外设计师留下的概念草图或者渲染效果图。 它们必须经过严格的工程评估和审议才能最终实施。

来源:
△通过严格的估算实现的设计和造型
换句话说,我们负责让走道“美观”,结构设计负责让走道“可靠”,房东负责筹集安装资金。

△2小时学会旋转走道的轮廓和建模△
△扫码会员免费学习观看
04.如何促进与厂家的二次对接
丨联系VX:dop050回复“公众号”入群

来源:
由于钢结构旋转走道的最终实施取决于专业、有资质的钢结构走道制造商。 这样,在设计钢结构旋转走道时,户外设计师与走道制造商之间的二次推广和对接就显得尤为重要。 具体流程如下:
1. 准备资料
室外设计师确定走道风格、材料、形状等设计信息,并向制造商提供相关空间结构信息(包括现场勘察)和制造工艺的详细要求。 或者提供装修设计推进图纸给过道厂家进行二次推进。

来源:
△提供现场勘察等资料
2、厂家推广
步道制造商的施工方或结构设计师根据初步设计图纸确定报价并签订设计协议,出具结构荷载计算表推进图纸,并与设计师沟通确认最终细节。 (这一步主要是厂家的事,基本与我们无关。)


来源:
△深度绘图和3D模型阐述
3、成品制作及安装
通道制造商将根据最终确定的新蓝图进行放样并组织车间模块生产。 鞋厂初步自检通过后,发货并运至现场安装。

来源:
由于钢结构走道的施工不同于其他装修施工,因此现场对钢结构走道的材料选择、焊接工艺以及表面涂漆处理都有较高的标准。

来源:
△楼梯主体结构施工

来源:
△楼梯踏步、栏杆、裙板施工
4、成品初检
安装完成后,步道制造商离开现场。 监理和初步设计检查通过后,开始清理并交付最终设计。

来源:
5、注意事项
这里值得注意的是,旋转走道的设计存在两个比较常见的质量缺陷。
A。 旋转走道倾斜角度过小,造成设计缺陷

来源:
这个问题是设计者在推进阶段最典型的缺乏考虑的问题。 结构工程师只负责计算荷载安全,而不考虑实际使用,导致最终施工中无法解决的质量问题。
因此,请记住这个规范:“螺旋走道距离外扶手中心250mm的台阶长度不应大于220mm”。

来源:
b. 施工过程中,走道基础钢架严重偏离设计规范,导致设计图纸同步调整,影响造型。
举一个实际的项目案例:某四星级酒店大堂空间的弧形结构比较复杂,因为原来的钢结构旋转走道框架是由非专业施工方安装的,导致走道基础钢架出现偏差与设计规格相差300毫米以上。 降低了现场布线工作的难度。


来源:
鉴于目前的这些情况,设计人员无奈,只能根据图纸预先确定规格,并现场审核实际规格,找出两者的差异,并进行修复,将偏差降到最低。
这再次说明了在这些相对复杂的小型项目中选择专业、合格的制造商的重要性。
(本文图片均来自网络,版权归原作者所有)

△加入设计交流群,对接行业资源△
概括。
丨联系VX:dop032回复“公众号”进群
好了,这期的 dop 要点就到此为止。 如果有帮助的话,请在评论区留言支持dop~
如果你想更系统地了解旋转步道的进展,推荐《范露露丨2小时学会画旋转步道》课程。 2小时,我们带您从无到有完成一套完整的旋转步道施工图。

△2小时学会旋转走道的轮廓和建模△
△扫码会员免费学习观看
有超过10条评论。 下一篇我们将讨论“旋转电视墙系统,设计要点是什么?” 》,敬请期待~
最后一张图总结了全文,记得关注公众号~
